REQUEST A TOUR
Listed by Dustin Sikler • eXp Realty
$696,000
Est. payment /mo
3 Beds
3 Baths
1,914 SqFt
UPDATED:
Key Details
Property Type Single Family Home
Sub Type Detached
Listing Status Active
Purchase Type For Sale
Square Footage 1,914 sqft
Price per Sqft $363
Subdivision Brighton
MLS Listing ID SK032340
Style 2 Storey
Bedrooms 3
Year Built 2026
Property Sub-Type Detached
Source Saskatchewan
Property Description
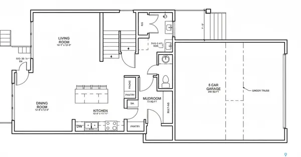
Welcome to this stunning new build in the heart of Brighton offering 1,914 sqft of thoughtfully designed living space. The main floor features a functional and stylish layout with a beautiful kitchen complete with a large island that comfortably seats four, a walk-through pantry, stainless steel appliances and seamless flow into the dining and living areas, perfect for everyday living and entertaining. Large windows throughout the living room and dining room flood the space with natural light, creating a bright and inviting atmosphere. Upstairs, you'll find three generously sized bedrooms including a spacious primary retreat featuring a 5-piece ensuite and walk-in closet. The second level also offers a versatile bonus room, convenient laundry room, and an additional 4-piece bathroom, ideal for growing families. This home is finished with eye-catching curb appeal and comes complete with front driveway and sod, making it truly move-in ready. Take advantage of this incredible presale opportunity and secure your home in one of Saskatoon's most sought-after neighbourhoods. Contact your favourite agent today!
Location
Province SK
Community Brighton
Rooms
Basement Full Basement, Unfinished
Kitchen 1
Interior
Interior Features Heat Recovery Unit, Sump Pump
Hot Water Gas
Heating Forced Air, Natural Gas
Appliance Dryer, Fridge, Garage Door Opnr/Control(S), Microwave, Microwave Hood Fan, Stove, Washer
Exterior
Exterior Feature Composite Siding
Parking Features 2 Car Attached
Garage Spaces 4.0
Roof Type Asphalt Shingles
Total Parking Spaces 4
Others
Ownership Freehold
Read Less Info
NEARBY SCHOOLS & PROPERTIES

GET MORE INFORMATION
QUICK SEARCH
- Caswell Hill, SK Homes For Sale
- Briarwood, SK Homes For Sale
- Holliston, SK Homes For Sale
- Arbor Creek, SK Homes For Sale
- Haultain, SK Homes For Sale
- Buena Vista, SK Homes For Sale
- Sutherland, SK Homes For Sale
- Adelaide/Churchill, SK Homes For Sale
- Forest Grove, SK Homes For Sale
- Aspen Ridge, SK Homes For Sale
- Silverwood Heights, SK Homes For Sa
- Silversprings, SK Homes For Sale
- Wildwood, SK Homes For Sale
- Hampton Village, SK Homes For Sale
- College Park , SK Homes For Sale
- Riversdale, SK Homes For Sale
- East College Park, SK Homes For Sale
- Avalon, SK Homes For Sale
- City Park, SK Homes For Sale
- Lakeridge, SK Homes For Sale



